小流量用 面積流量計 (パージメーター)
●製品概要 |
 |
NSPシリーズは、流体・流量範囲を標準化し、目盛を常時在庫することにより短納期を 実現した小流量用面積流量計です。
流れ方向は、これまでの小流量用面積流量計で一般的であった垂直配管用(下→上)、 パネル取付けタイプ(下後→上後)に加え、独自の設計による水平配管用(左→右または右→左)も取り揃えています。
また、水平配管用では、取り付けスペースの制約を考慮し、指示部上側と指示部下側を 用意いたしましたので、実際の配管に合わせた選択が可能です。
材質は本体にSCS14、テーパー管にパイレックスを使用していますので、高い耐食性を持つと同時に、樹脂製パージメータと比較し、優れた耐圧・耐熱性を有しています。 |
|
●配管タイプを下記より選んでください。 |
|
|
|
|
|
|
| |
●仕様
|
|
Rc1/4-Sタイプ
(小型タイプ、
NSPO-4型のみ) |
Rc1/4-L
タイプ |
Rc3/8
タイプ |
Rc1/2
タイプ |
Rc3/4
タイプ |
Rc1
タイプ |
| 接続口径 |
Rc1/4 |
Rc1/4 |
Rc3/8 |
Rc1/2 |
Rc3/4 |
Rc1 |
| 精度 |
±8.0%FS |
±5.0%FS |
±3.0%FS |
| 流 体 |
┌
|
└ |
液体(水相当)用 |
・・・ |
流量単位をL/min(またはmL/min)と
L/hの(またはm3/h)二重目盛 |
| 気体(Air/N2)用 |
・・・ |
流体をAirとN2ガスの二重目盛 |
※Rc1/4-Lタイプのみ、Ar用、CO2用(いずれも単目盛)もご用意しています。 |
| 最高使用圧力 |
0.8MPa |
0.6MPa |
| 最高使用温度 |
90℃(フロート材質がPVCの場合、50℃) |
|
|
●NSP-1型 (Rc1/4-L タイプ・Rc3/8 タイプ) |
外形図

|
| No. |
部品名 |
材質 |
| 1 |
上ブロック |
SCS14 |
| 2 |
ガスケット |
NBR |
| 3 |
上部ストッパ |
PFA / POM |
| 4 |
ガイド棒※ |
SUS304 |
| 5 |
バックフレーム |
SUS304 |
| 6 |
リアフレーム |
SUS304 |
| 7 |
フロート |
SUS304/チタン
ガラス/カーボン
PVC/アルミ |
| 8 |
保護カバー |
PC |
| 9 |
テーパー管 |
耐熱ガラス |
| 10 |
下部ストッパ |
PFA/PTFE/POM |
| 11 |
固定ピース |
SUS304 |
| 12 |
Oリング |
NBR |
| 13 |
下ブロック |
SCS14 |
|
|
|
|
| 形式/寸法 |
d |
W |
L |
D1 |
D2 |
| Rc1/4-L タイプ |
Rc1/4 |
31.5 |
165 |
36.5 |
20 |
| Rc3/8 タイプ |
Rc3/8 |
40 |
210 |
44.5 |
24 |
|
|
|
 |
パネルカット図

|
| 形式/寸法 |
P1 |
P2 |
| Rc1/4-L タイプ |
70 |
18 |
| Rc3/8 タイプ |
100 |
22 |
|
|
●NSP-1型 (Rc1/2タイプ・Rc3/4 タイプ・Rc1 タイプ) |
外形図

|
パネルカット図

|
| No. |
部品名 |
材質 |
Rc1/2
タイプ |
Rc3/4・
Rc1タイプ |
| 1 |
ブロック |
SCS14 |
SCS13 |
| 2 |
ガスケット |
NBR |
| 3 |
上部ストッパ |
POM |
PP |
| 4 |
ガイド棒 |
SUS304 |
| 5 |
テーパ管 |
耐熱ガラス |
| 6 |
フロート |
SUS304/PVC/
アルミ |
| 7 |
保護カバー |
PC |
| 8 |
支柱 |
SUS303 |
|
|
| No. |
部品名 |
材質 |
Rc1/2
タイプ |
Rc3/4・
Rc1タイプ |
| 9 |
フレーム |
SUS304 |
| 10 |
下部ストッパ |
POM |
PP |
| 11 |
六角穴付き
ボルト |
SUS304 |
| 12 |
Oリング※ |
− |
NBR |
| 13 |
ダンパ※ |
− |
NBR/
EPDM |
| 14 |
六角穴付き
ボタンボルト |
SUS304 |
|
|
| ※ |
Rc1/2タイプにはOリング・ダンパはありません |
|
外形寸法(2012年7月販売分より寸法が変更になっています。)
| タイプ/寸法 |
d |
W |
L |
D1 |
D2 |
| Rc1/2タイプ |
Rc1/2 |
47.3 |
210 |
49.5 |
24.5 |
| Rc3/4 タイプ |
Rc3/4 |
53.3 |
224 |
55 |
27 |
| Rc1 タイプ |
Rc1 |
59.3 |
250 |
61 |
30 |
|
|
|
パネルカット寸法(2012年7月販売分より寸法が変更になっています。)
| タイプ/寸法 |
P1 |
P2 |
P3 |
P4 |
φh |
| Rc1/2タイプ |
110 |
30 |
13 |
163 |
8.5 |
| Rc3/4 タイプ |
110 |
36 |
18 |
186 |
8.5 |
| Rc1 タイプ |
120 |
40 |
23 |
207 |
10.5 |
|
|
|
●NSP-5型、NSP-6型 (Rc1/4-L タイプ・Rc3/8 タイプ・Rc1/2 タイプ) |
外形図
 |
| No. |
部品名 |
材質 |
| 1 |
トップブロック |
SCS14 |
| 2 |
Oリング |
NBR |
| 3 |
ガスケット |
NBR |
| 4 |
上部ストッパ |
PFA/POM |
| 5 |
戻り管 |
SUS304 |
| 6 |
メインフレーム |
SUS304 |
| 7 |
フロートガイド※ |
SUS304 |
| 8 |
フロート |
SUS304/チタン
ガラス/カーボン
PVC/アルミ |
| 9 |
保護カバー |
PC |
| 10 |
テーパ管 |
パイレックス |
| 11 |
下部ストッパ |
PFA/PTFE/POM |
| 12 |
ボトムブロック |
SCS14 |
|
|
| ※ |
Rc1/4-Lタイプには、フロートガイドはありません。 |
|
| 形式/寸法 |
d |
W1 |
W2 |
L1 |
L2 |
D1 |
D2 |
| Rc1/4-L タイプ |
Rc1/4 |
29 |
50 |
143 |
10 |
37 |
16 |
| Rc3/8 タイプ |
Rc3/8 |
37 |
60 |
183 |
12 |
46.5 |
19.5 |
| Rc1/2 タイプ |
Rc1/2 |
44 |
70 |
210 |
14 |
59 |
23.5 |
|
|
 |
パネルカット図

|
| 形式/寸法 |
P1 |
P2 |
P3 |
| Rc1/4-L タイプ |
58.4 |
34 |
17 |
| Rc3/8 タイプ |
100 |
32 |
17 |
| Rc1/2 タイプ |
100 |
51 |
24 |
|
|
●NSP-5型、NSP-6型 (Rc3/4 タイプ・Rc1 タイプ) |
外形図
 |
| No. |
部品名 |
材質 |
| 1 |
トップブロック |
SCS13 |
| 2 |
ガスケット |
NBR |
| 3 |
上部ストッパ |
PP |
| 4 |
フロートガイド |
SUS304 |
| 5 |
テーパ管 |
パイレックス |
| 6 |
保護カバー |
PC |
| 7 |
フロート |
SUS304/アルミ |
| 8 |
戻り管 |
SUS304 |
| 9 |
フレーム |
SUS304 |
| 10 |
ボトムブロック |
SCS13 |
| 11 |
下部ストッパ |
PP |
|
|
| 形式/寸法 |
d |
W1 |
W2 |
L1 |
L2 |
D1 |
D2 |
| Rc3/4 タイプ |
Rc3/4 |
59 |
105 |
248 |
18 |
76 |
33 |
| Rc1 タイプ |
Rc1 |
68 |
120 |
279 |
21 |
89 |
39 |
|
|
 |
パネルカット図

|
| 形式/寸法 |
P1 |
P2 |
P3 |
| Rc3/4 タイプ |
110 |
49 |
36 |
| Rc1 タイプ |
120 |
58 |
40 |
|
|
●NSP-7型、NSP-8型 (Rc1/4-L タイプ・Rc3/8 タイプ・Rc1/2 タイプ) |
外形図
 |
| No. |
部品名 |
材質 |
| 1 |
トップブロック |
SCS14 |
| 2 |
Oリング |
NBR |
| 3 |
ガスケット |
NBR |
| 4 |
下部ストッパ |
PFA/PTFE/POM |
| 5 |
戻り管 |
SUS304 |
| 6 |
メインフレーム |
SUS304 |
| 7 |
フロートガイド※ |
SUS304 |
| 8 |
フロート |
SUS304/チタン
ガラス/カーボン
PVC/アルミ |
| 9 |
保護カバー |
PC |
| 10 |
テーパ管 |
パイレックス |
| 11 |
上部ストッパ |
PFA/POM |
| 12 |
ボトムブロック |
SCS14 |
|
|
| ※ |
Rc1/4-Lタイプには、フロートガイドはありません。 |
|
| 形式/寸法 |
d |
W1 |
W2 |
L1 |
L2 |
D1 |
D2 |
| Rc1/4-L タイプ |
Rc1/4 |
29 |
50 |
143 |
10 |
37 |
16 |
| Rc3/8 タイプ |
Rc3/8 |
37 |
60 |
183 |
12 |
46.5 |
19.5 |
| Rc1/2 タイプ |
Rc1/2 |
44 |
70 |
210 |
14 |
59 |
23.5 |
|
|
 |
パネルカット図

|
| 形式/寸法 |
P1 |
P2 |
P3 |
| Rc1/4-L タイプ |
58.4 |
34 |
17 |
| Rc3/8 タイプ |
100 |
32 |
17 |
| Rc1/2 タイプ |
100 |
51 |
24 |
|
|
●NSP-7型、NSP-8型 (Rc3/4 タイプ・Rc1 タイプ) |
外形図
 |
| No. |
部品名 |
材質 |
| 1 |
トップブロック |
SCS13 |
| 2 |
ガスケット |
NBR |
| 3 |
上部ストッパ |
PP |
| 4 |
フロートガイド |
SUS304 |
| 5 |
テーパ管 |
パイレックス |
| 6 |
保護カバー |
PC |
| 7 |
フロート |
SUS304/アルミ |
| 8 |
戻り管 |
SUS304 |
| 9 |
フレーム |
SUS304 |
| 10 |
ボトムブロック |
SUS13 |
| 11 |
下部ストッパ |
PP |
|
|
| 形式/寸法 |
d |
W1 |
W2 |
L1 |
L2 |
D1 |
D2 |
| Rc3/4 タイプ |
Rc3/4 |
59 |
105 |
248 |
18 |
76 |
33 |
| Rc1 タイプ |
Rc1 |
68 |
120 |
279 |
21 |
89 |
39 |
|
|
 |
パネルカット図

|
| 形式/寸法 |
P1 |
P2 |
P3 |
| Rc3/4 タイプ |
110 |
49 |
36 |
| Rc1 タイプ |
120 |
58 |
40 |
|
|
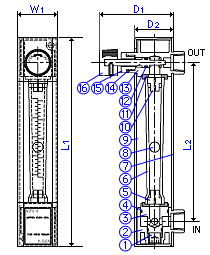
●NSPO-4型 (Rc1/4-Sタイプ・Rc1/4-Lタイプ) |
外形図
 |
パネルカット図
 |
| No. |
部品名 |
材質 |
| 1 |
六角穴付
止めネジ |
SUS304 |
| 2 |
本体A |
SCS14 |
| 3 |
固定ピース |
SUS316 |
| 4 |
Oリング |
NBR |
| 5 |
下部ストッパ |
PFA/PTFE |
| 6 |
テーパ管 |
パイレックス |
| 7 |
背板 |
SUS304 |
| 8 |
フロート |
ガラス/カーボン
/SUS304 |
|
|
| No. |
部品名 |
材質 |
| 9 |
保護カバー |
PC |
| 10 |
上部ストッパ |
PFA |
| 11 |
ガスケット |
NBR |
| 12 |
Oリング |
NBR |
| 13 |
本体B |
SCS14 |
| 14 |
ニードルシャフト |
SUS316 |
| 15 |
ニードルシリンダ |
SUS316 |
| 16 |
ハンドル |
POM |
|
|
| 形式/寸法 |
W1 |
L1 |
L2 |
D1 |
D2 |
P1 |
| Rc1/4-S タイプ |
31.5 |
130 |
90 |
58〜64 |
30.6 |
90 |
| Rc1/4-L タイプ |
31.5 |
165 |
125 |
58〜64 |
30.6 |
125 |
|
|
●NSPO-4型 (Rc3/8 タイプ・Rc1/2 タイプ) |
外形図
 |
パネルカット図
 |
| No. |
部品名 |
材質 |
| 1 |
六角穴付
止めネジ |
SUS304 |
| 2 |
本体A |
SCS14 |
| 3 |
固定ピース |
SUS316 |
| 4 |
Oリング |
NBR |
| 5 |
下部ストッパ |
POM |
| 6 |
テーパ管 |
パイレックス |
| 7 |
背板 |
SUS304 |
| 8 |
フロート |
PVC/アルミ
/SUS304 |
|
|
| No. |
部品名 |
材質 |
| 9 |
フロートガイド |
SUS304 |
| 10 |
保護カバー |
PC |
| 11 |
上部ストッパ |
POM |
| 12 |
ガスケット |
NBR |
| 13 |
Oリング |
NBR |
| 14 |
本体B |
SCS14 |
| 15 |
ニードルシャフト |
SUS316 |
| 16 |
ニードルシリンダ |
SUS316 |
| 17 |
ハンドル |
POM |
|
|
| 形式/寸法 |
W1 |
L1 |
L2 |
D1 |
D2 |
P1 |
P2 |
P3 |
B1 |
B2 |
| Rc3/8 タイプ |
39 |
210 |
159 |
73〜84 |
37.5 |
159 |
14.5 |
24 |
22.5 |
6 |
| Rc1/2 タイプ |
46.5 |
241 |
182 |
82〜96 |
44.5 |
182 |
18.5 |
30 |
28 |
7 |
|
|
●NSPO-4型 (Rc3/4タイプ・Rc1タイプ) |
外形図
 |
パネルカット図
 |
| No. |
部品名 |
材質 |
| 1 |
六角穴付
止めネジ |
SUS304 |
| 2 |
本体A |
SCS13 |
| 3 |
固定ピース |
SCS13 |
| 4 |
Oリング |
NBR |
| 5 |
下部ストッパ |
PP |
| 6 |
テーパ管 |
パイレックス |
| 7 |
背板 |
SUS304 |
| 8 |
フロート |
アルミ
/SUS304 |
|
|
| No. |
部品名 |
材質 |
| 9 |
フロートガイド |
SUS304 |
| 10 |
保護カバー |
PC |
| 11 |
上部ストッパ |
PP |
| 12 |
ガスケット |
NBR |
| 13 |
Oリング |
NBR |
| 14 |
本体B |
SCS13 |
| 15 |
ニードルシャフト |
SUS304 |
| 16 |
ニードルシリンダ |
SCS13 |
| 17 |
ハンドル |
POM |
|
|
| 形式/寸法 |
W1 |
L1 |
L2 |
D1 |
D2 |
P1 |
P2 |
P3 |
B1 |
B2 |
| Rc3/4 タイプ |
59.5 |
295 |
218 |
88〜110 |
54.5 |
218 |
28.5 |
39 |
34 |
7 |
| Rc1 タイプ |
66.5 |
328 |
246 |
98〜110 |
63.5 |
246 |
31 |
45 |
41 |
7 |
|
|